Villa singola in vendita

Rignano Flaminio, Località Valle Spadana - Viale Tirreno - Valle Spadana
€ 210.000
3 locali 3 locali
140 Mq 140 Mq
2 bagni 2 bagni

Villa singola in vendita

Rignano Flaminio, Località Valle Spadana - Viale Tirreno - Valle Spadana

Descrizione annuncio

In posizione riservata e tranquilla, immersa nel verde e lontana dal caos cittadino, proponiamo in vendita villa indipendente con vista panoramica e ampi spazi esterni.

La proprietà, circondata da una corte esterna curata e da un giardino pianeggiante di circa 4000 mq, è arricchita da alberi ad alto fusto, piante di ulivo, aiuole fiorite e ampie aree pavimentate, ideali per momenti di relax all’aria aperta e convivialità.

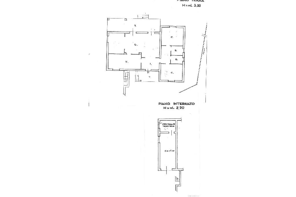
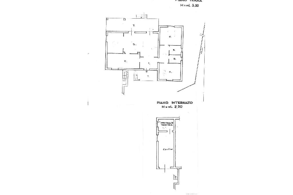
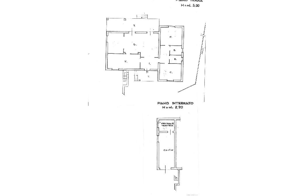
L’immobile dotato di due ingressi carrabili, un comodo viale privato conduce alla villa, realizzata alla fine degli anni ’80, ad oggi in buono stato di conservazione. L’abitazione si sviluppa su un unico livello per una metratura di circa 140 mq, e si compone di: ampio salone luminoso con camino e uscita verso l’esterno, cucina abitabile, due camere matrimoniali, disimpegno, ripostiglio e due servizi.

Completano la proprietà due portici di circa 30 mq, e la zona sottostante di circa 40 mq dove troviamo un garage e una cantina/magazzino versatile, perfetta come spazio di stoccaggio o per creare una zona hobby.

Soluzione ideale per chi è alla ricerca di tranquillità, privacy e spazi verdi, pur rimanendo a pochi chilometri da tutti i principali servizi.

Mostra tutto

Nelle vicinanze

Trasporto pubblico Trasporto pubblico
Magliano Romano
Magliano Romano
1,1 Km
Morlupo - Capena
Morlupo - Capena
2,0 Km
Trasporto pubblico
1,1 Km
Farmacia Farmacia
Farmacia Ricci
560 m
Farmacia
1,9 Km
Farmacia Comunale
2,9 Km
Ospedali Ospedali
Croce Rossa Morlupo
2,0 Km
Supermercati Supermercati
EuroSpin
470 m
Eurospin
1,2 Km
Carrefour Express Morlupo
1,9 Km
Centro Commerciale Antica Via
2,1 Km
Margherita Conad
2,8 Km
Negozi Negozi
Flash Moda
2,1 Km
Beverly
2,2 Km
Alori
2,2 Km
Le Due Rose
2,5 Km
Ristoranti Ristoranti
Pizza Elio
1,9 Km
Le Chef
2,5 Km
Il Campagnolo
2,6 Km
Trattoria da Giglietto
2,8 Km
La Piazzetta
2,8 Km
Mostra tutto

Caratteristiche

Rif.:
61107705
Piano:
Basso di 2
Totale piani:
2
Box:
1
Posti auto:
3
Camere da letto:
2
Mostra tutto
Prezzo Prezzo
€ 210.000
Rata mutuo Rata mutuo
€ 997 / mese
Spese annue Spese annue
€ 402
Proponi il tuo prezzoProponi il tuo prezzo

Classe Energetica

G
G
G
G
G
G
G
G
G
EP globale non rinnovabile:
243.61 kW h/m² anno
EP globale rinnovabile:
243.61 kW h/m² anno
EP invernale del fabbricato:
EP estiva del fabbricato:
Anno di costruzione:
1980
Riscaldamento:
Autonomo
Tipo impianto:
A radiatori
Tipo alimentazione:
GPL

Ti interessa visionare l'immobile?

Fissa un appuntamento  Fissa un appuntamento

Richiedi informazioni

Clicca su Leggi per aprire l'informativa
* Questi campi sono obbligatori

Calcola il tuo mutuo

Semplice e senza impegno
Anticipo

( % )
Mutuo

( % )

pochi semplici passi

inserisci i tuoi dati
Questionario completato
Grazie per aver richiesto un appuntamento senza impegno con un nostro Consulente del Credito e Assicurativo.

Hai inserito correttamente tutti i dati necessari e a breve riceverai una e-mail con un link da convalidare per inviare i tuoi dati.
Affiliato
Grupposabinarignano Srl
Corso Umberto I°, 17 00068 Rignano Flaminio (RM)

Il nostro staff


  • Serena D'Onofri
    Coordinatrice
Corso Umberto I°, 17 00068 Rignano Flaminio (RM)
Zona: Rignano Flaminio
Mostra su mappa
Orari: 08:30/13:00 15:00/19:00
Affiliato
Grupposabinarignano Srl
Corso Umberto I°, 17 00068 Rignano Flaminio (RM)

2026 Tecnocasa Franchising S.p.A. - P. IVA 08365160152 - Via Monte Bianco 60/A 20089 Rozzano (MI). Ogni agenzia ha un proprio titolare ed è autonoma. Privacy policy | Policy utilizzo | Cookie policy