5 locali in vendita

Rignano Flaminio, Viale d. Alighieri
€ 79.000
5 locali 5 locali
194 Mq 194 Mq
1 bagno 1 bagno

5 locali in vendita

Rignano Flaminio, Viale d. Alighieri

Descrizione annuncio

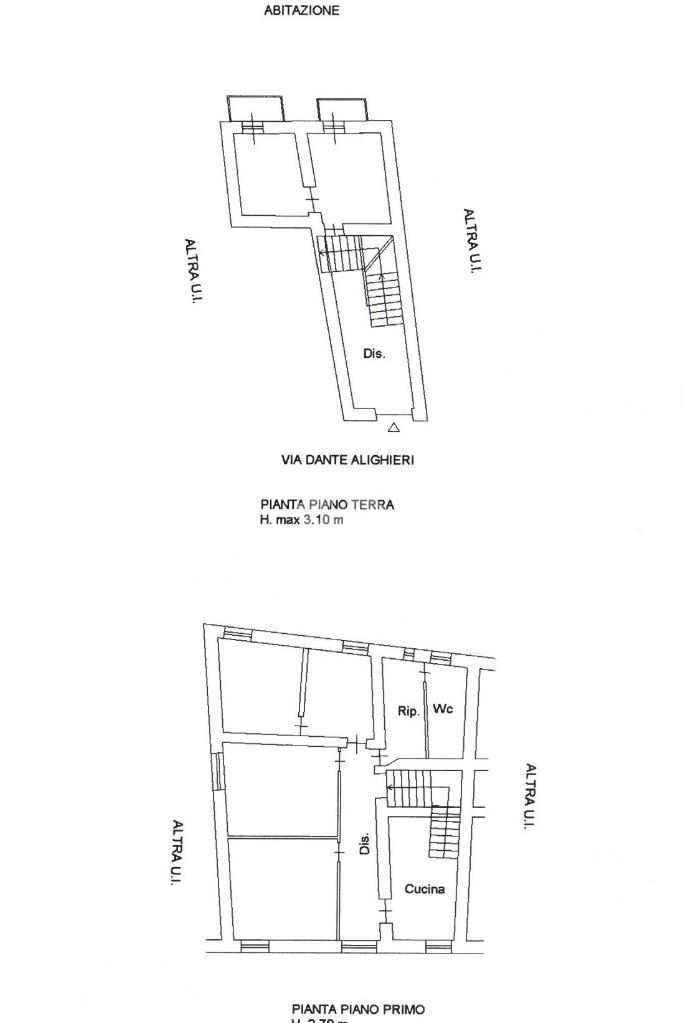
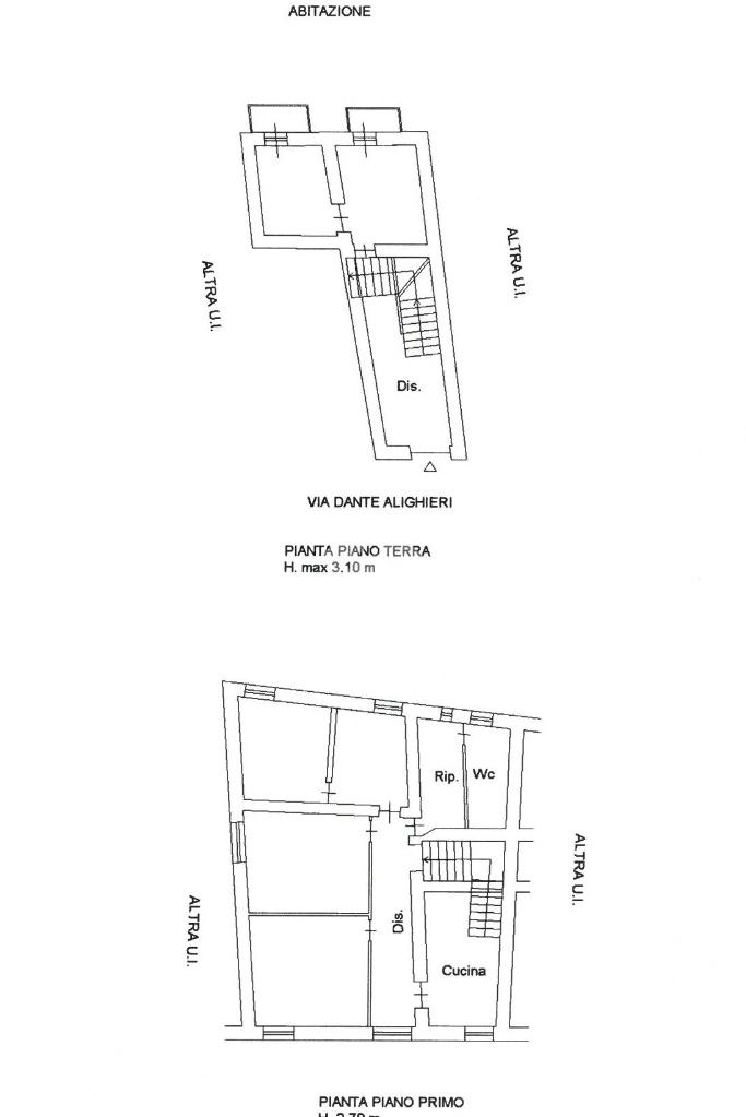
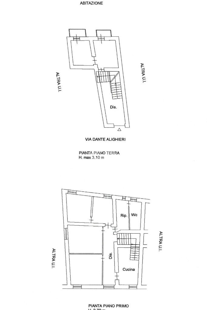
Nel cuore autentico del centro storico di Rignano Flaminio, in Via Dante Alighieri, a pochi passi dalla suggestiva Piazza Cavour recentemente riqualificata e in prossimità della Rocca, proponiamo in vendita palazzetto cielo-terra con ingresso indipendente, perfetto per chi desidera vivere la magia del borgo senza rinunciare alla comodità dei principali servizi.

L’immobile, di circa 190 mq complessivi, conserva il fascino autentico delle abitazioni storiche, con elementi architettonici tipici e dettagli originali che ne esaltano il carattere. Varcando l’ingresso si accede a un disimpegno che funge da elemento centrale di distribuzione, suddividendo in modo funzionale il piano terra dal piano primo.

Al piano troviamo una cucina e un accogliente salottino, entrambi dotati di balcone con affaccio panoramico sul Monte Soratte; al piano primo si sviluppa la zona giorno principale, con una cucina abitabile impreziosita da camino, un ampio e luminoso salone, due spaziose camere matrimoniali, un ulteriore ambiente adibito a studio/ cameretta, un antibagno e un servizio.

Gli spazi, generosi e ben distribuiti, offrono grande versatilità e si prestano a diverse soluzioni abitative, mantenendo il fascino originario dell’immobile.

Completa la proprietà, al piano seminterrato, una cantina suddivisa in due ambienti e una caratteristica grotta, ideale come spazio di deposito o da valorizzare secondo le proprie esigenze.

Il vero punto di forza di questa soluzione è senza dubbio la posizione centrale e la sua unicità: ricca di personalità, ampia e luminosa, ideale per chi è alla ricerca di una casa fuori dagli standard, capace di unire storia, comfort e autenticità nel cuore di uno dei borghi più suggestivi della zona.

Mostra tutto

Nelle vicinanze

Trasporto pubblico Trasporto pubblico
Rignano Flaminio
Rignano Flaminio
370 m
Sant'Oreste
Sant'Oreste
2,2 Km
Rignano Flaminio - Flaminia Carducci
Rignano Flaminio - Flaminia Carducci
410 m
Rignano Flaminio - ITCG "P .L. Nervi"
Rignano Flaminio - ITCG "P .L. Nervi"
510 m
Scuole Scuole
Istituto Comprensivo Olga Rovere
130 m
Scuola Media Statale "Pio Morelli"
190 m
ITCG P. L. Nervi
560 m
Farmacia Farmacia
Farmacia
110 m
Supermercati Supermercati
Supermercati
120 m
Ins Mercato
340 m
InCoop
790 m
MD
840 m
Coop
1,2 Km
Bar Bar
Bar della Stazione
360 m
Bar
400 m
Mostra tutto

Caratteristiche

Rif.:
61203102
Piano:
Basso di 3
Totale piani:
3
Balconi:
2
Camere da letto:
4
Arredamento:
Assente
Mostra tutto
Prezzo Prezzo
€ 79.000
Rata mutuo Rata mutuo
€ 375 / mese
Spese annue Spese annue
€ 3
Proponi il tuo prezzoProponi il tuo prezzo
Immobile valutato con T·Valuta

Classe Energetica

E
E
E
E
E
E
E
E
E
EP globale non rinnovabile:
140.29 kW h/m² anno
EP globale rinnovabile:
140.29 kW h/m² anno
EP invernale del fabbricato:
EP estiva del fabbricato:
Anno di costruzione:
1960
Riscaldamento:
Autonomo
Tipo impianto:
A radiatori
Tipo alimentazione:
Metano

Ti interessa visionare l'immobile?

Fissa un appuntamento  Fissa un appuntamento

Richiedi informazioni

Clicca su Leggi per aprire l'informativa
* Questi campi sono obbligatori

Calcola il tuo mutuo

Semplice e senza impegno
Anticipo

( % )
Mutuo

( % )

pochi semplici passi

inserisci i tuoi dati
Questionario completato
Grazie per aver richiesto un appuntamento senza impegno con un nostro Consulente del Credito e Assicurativo.

Hai inserito correttamente tutti i dati necessari e a breve riceverai una e-mail con un link da convalidare per inviare i tuoi dati.
Affiliato
Grupposabinarignano Srl
Corso Umberto I°, 17 00068 Rignano Flaminio (RM)

Il nostro staff


  • Serena D'Onofri
    Coordinatrice
Corso Umberto I°, 17 00068 Rignano Flaminio (RM)
Zona: Rignano Flaminio
Mostra su mappa
Orari: 08:30/13:00 15:00/19:00
Affiliato
Grupposabinarignano Srl
Corso Umberto I°, 17 00068 Rignano Flaminio (RM)

2026 Tecnocasa Franchising S.p.A. - P. IVA 08365160152 - Via Monte Bianco 60/A 20089 Rozzano (MI). Ogni agenzia ha un proprio titolare ed è autonoma. Privacy policy | Policy utilizzo | Cookie policy