Quadrilocale in vendita

Rignano Flaminio, Via Marco Polo
€ 129.000
Prezzo aggiornato
4 locali 4 locali
130 Mq 130 Mq
2 bagni 2 bagni

Quadrilocale in vendita

Rignano Flaminio, Via Marco Polo

Descrizione annuncio

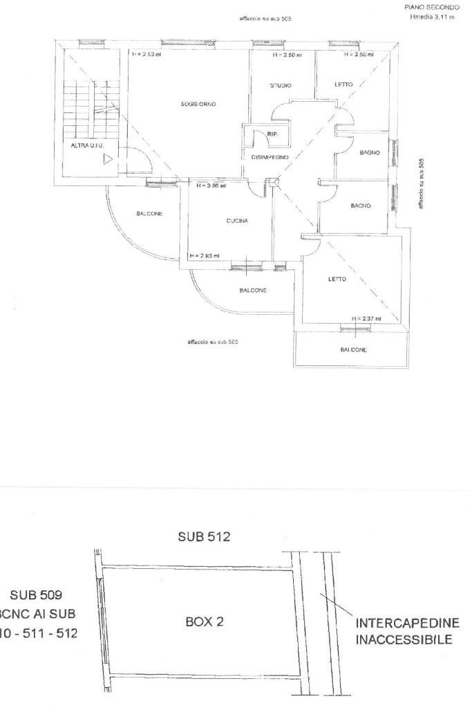
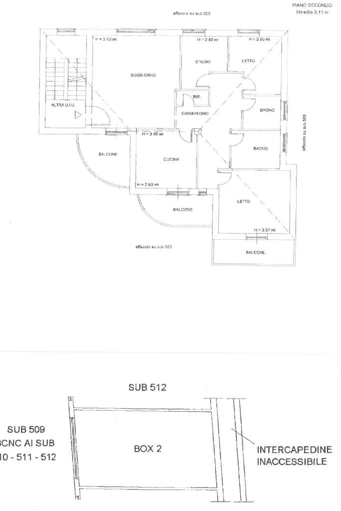
A soli 500 metri dal centro del paese e dalla via Flaminia, in via Marco Polo, proponiamo in vendita un appartamento situato al terzo piano; inserito in un contesto residenziale tranquillo e riservato, realizzato nei primi anni ’80 e composto da sole tre unità abitative.

Con una superficie di circa 130 mq, offre ambienti ampi e ben distribuiti:

L’ingresso conduce a un luminoso soggiorno, perfetto per momenti di convivialità, affiancato da una cucina abitabile, funzionale e ben organizzata, un comodo disimpegno accompagna alla zona notte, composta da una camera matrimoniale, una cameretta e una terza stanza ideale come studio, o ulteriore camera, completano l’interno un pratico ripostiglio, utile per l’organizzazione della casa, un bagno principale con vasca e un secondo bagno con doccia,

Completano l’interno un pratico ripostiglio, utile per l’organizzazione della casa, un bagno principale con vasca e un secondo bagno con doccia.

Punto di forza dell’abitazione sono i tre balconi, che assicurano un’ottima luminosità e rappresentano piacevoli sfoghi esterni vivibili per momenti di relax all’aperto.

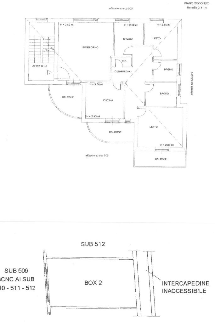
Completa la proprietà un comodo posto auto coperto, facilmente accessibile, che garantisce praticità e comodità.

Soluzione ideale per famiglie o per chi è alla ricerca di spazi generosi in un contesto tranquillo ma ben servito: la posizione centrale e l’ottima metratura rendono questo immobile particolarmente interessante e adatto a diverse esigenze abitative.

Mostra tutto

Nelle vicinanze

Trasporto pubblico Trasporto pubblico
Rignano Flaminio
Rignano Flaminio
350 m
Sant'Oreste
Sant'Oreste
1,7 Km
Rignano Flaminio - Flaminia Carducci
Rignano Flaminio - Flaminia Carducci
200 m
Rignano Flaminio - ITCG "P .L. Nervi"
Rignano Flaminio - ITCG "P .L. Nervi"
830 m
Scuole Scuole
Scuola Media Statale "Pio Morelli"
320 m
Istituto Comprensivo Olga Rovere
380 m
ITCG P. L. Nervi
880 m
Farmacia Farmacia
Farmacia
260 m
Supermercati Supermercati
InCoop
480 m
Supermercati
610 m
Ins Mercato
740 m
MD
1,2 Km
Coop
1,6 Km
Bar Bar
Bar
190 m
Bar della Stazione
340 m
Mostra tutto

Caratteristiche

Rif.:
61200208
Piano:
3 di 3 (Piano alto)
Box:
1
Balconi:
3
Camere da letto:
3
Arredamento:
Assente
Mostra tutto
Prezzo Prezzo
€ 129.000
Rata mutuo Rata mutuo
€ 612 / mese
Spese annue Spese annue
€ 3
Proponi il tuo prezzoProponi il tuo prezzo

Classe Energetica

F
F
F
F
F
F
F
F
F
EP globale non rinnovabile:
235.19 kW h/m² anno
EP globale rinnovabile:
235.19 kW h/m² anno
EP invernale del fabbricato:
EP estiva del fabbricato:
Anno di costruzione:
1982
Riscaldamento:
Autonomo
Tipo impianto:
A radiatori
Tipo alimentazione:
Metano

Prezzo ridotto di €1 (14%%)

Ti interessa visionare l'immobile?

Fissa un appuntamento  Fissa un appuntamento

Richiedi informazioni

Clicca su Leggi per aprire l'informativa
* Questi campi sono obbligatori

Calcola il tuo mutuo

Semplice e senza impegno
Anticipo

( % )
Mutuo

( % )

pochi semplici passi

inserisci i tuoi dati
Questionario completato
Grazie per aver richiesto un appuntamento senza impegno con un nostro Consulente del Credito e Assicurativo.

Hai inserito correttamente tutti i dati necessari e a breve riceverai una e-mail con un link da convalidare per inviare i tuoi dati.
Affiliato
Grupposabinarignano Srl
Corso Umberto I°, 17 00068 Rignano Flaminio (RM)

Il nostro staff


  • Serena D'Onofri
    Coordinatrice
Corso Umberto I°, 17 00068 Rignano Flaminio (RM)
Zona: Rignano Flaminio
Mostra su mappa
Orari: 08:30/13:00 15:00/19:00
Affiliato
Grupposabinarignano Srl
Corso Umberto I°, 17 00068 Rignano Flaminio (RM)

2026 Tecnocasa Franchising S.p.A. - P. IVA 08365160152 - Via Monte Bianco 60/A 20089 Rozzano (MI). Ogni agenzia ha un proprio titolare ed è autonoma. Privacy policy | Policy utilizzo | Cookie policy