Trilocale in vendita

Rignano Flaminio, Via Bruno Buozzi
€ 109.000
3 locali 3 locali
76 Mq 76 Mq
1 bagno 1 bagno

Trilocale in vendita

Rignano Flaminio, Via Bruno Buozzi

Descrizione annuncio

Nel centro di Rignano Flaminio, in una posizione strategica e comoda per raggiungere a piedi tutti i principali servizi, proponiamo in vendita appartamento situato in Via Bruno Buozzi, all’interno di un condominio curato e ben mantenuto, realizzato nel 2005.

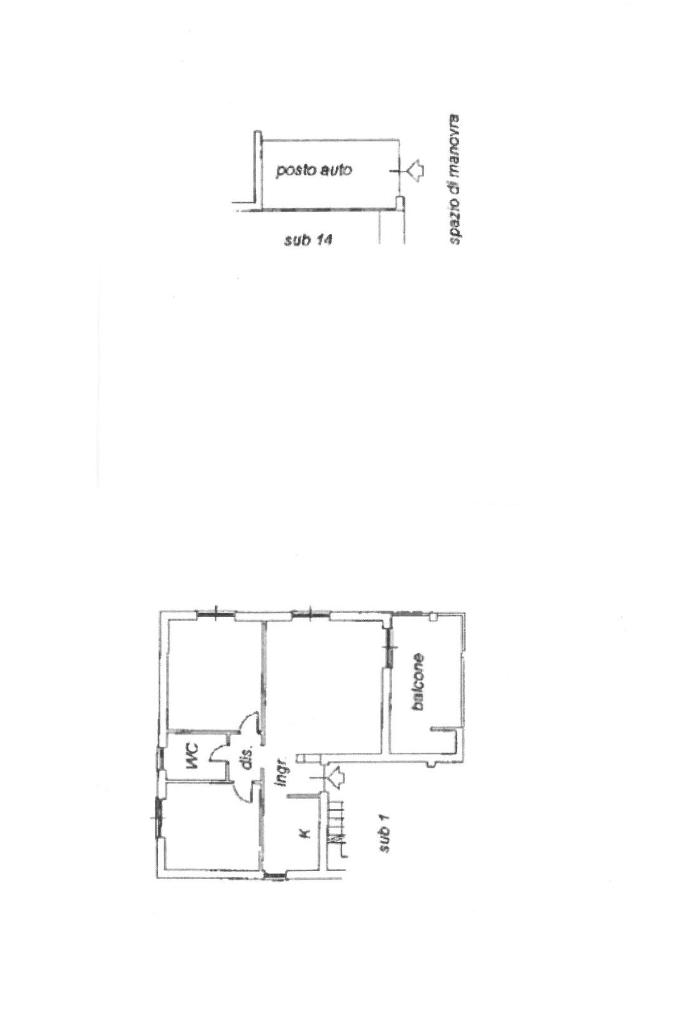
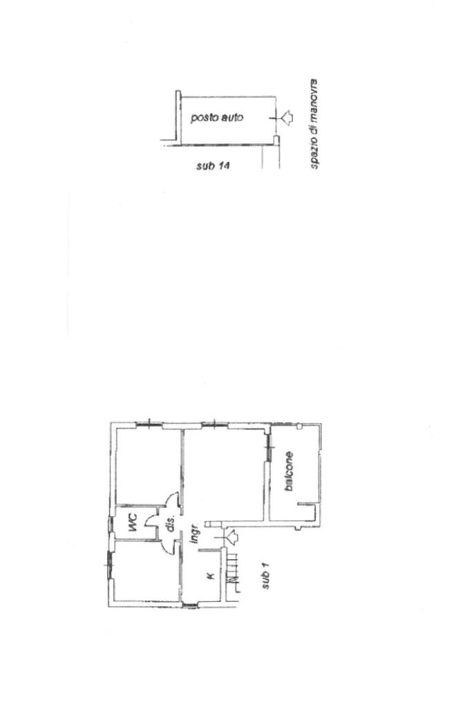
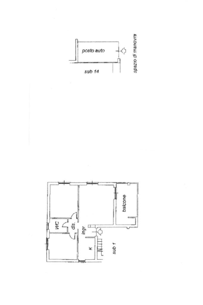
L’abitazione, posta al secondo piano e servita da ascensore, si sviluppa su un unico livello per una superficie interna di circa 75 mq e colpisce fin da subito per il suo stile moderno e funzionale, pensato per chi desidera vivere in ambienti accoglienti e pratici.

L’ingresso si apre su un luminoso soggiorno, spazio ideale per la vita quotidiana, con accesso diretto al terrazzo di circa 13 mq, perfetto per godersi piacevoli momenti di tranquillità; completa la zona giorno un moderno angolo cottura, ben organizzato e integrato nell’ambiente. La zona notte è composta da una comoda camera matrimoniale, un secondo ambiente versatile utilizzabile come studio o cameretta, un pratico disimpegno e un bagno finestrato dotato di vasca.

Un valore aggiunto dell’immobile è il posto auto di pertinenza, facilmente raggiungibile sia dall’interno tramite scala condominiale e ascensore, sia dall’esterno attraverso una rampa di accesso privata, garanzia di comfort e praticità in ogni stagione.

L’appartamento si presenta in buone condizioni ed è abitabile da subito, ideale sia come abitazione principale, sia come investimento, grazie alla posizione centrale e alla tipologia sempre molto richiesta.

L’ottima esposizione garantisce ambienti luminosi per gran parte della giornata, mentre la vista panoramica sul Monte Soratte dona una piacevole sensazione di apertura e tranquillità.

Una proposta moderna e funzionale, inserita nel centro del paese ma con un affaccio verso la natura, perfetta per chi cerca comodità senza rinunciare alla qualità dell’abitare.

Mostra tutto

Nelle vicinanze

Trasporto pubblico Trasporto pubblico
Rignano Flaminio
Rignano Flaminio
370 m
Sant'Oreste
Sant'Oreste
1,8 Km
Rignano Flaminio - Flaminia Carducci
Rignano Flaminio - Flaminia Carducci
230 m
Rignano Flaminio - ITCG "P .L. Nervi"
Rignano Flaminio - ITCG "P .L. Nervi"
830 m
Scuole Scuole
Scuola Media Statale "Pio Morelli"
290 m
Istituto Comprensivo Olga Rovere
340 m
ITCG P. L. Nervi
880 m
Farmacia Farmacia
Farmacia
190 m
Supermercati Supermercati
Supermercati
560 m
InCoop
560 m
Ins Mercato
670 m
MD
1,1 Km
Coop
1,6 Km
Bar Bar
Bar
210 m
Bar della Stazione
360 m
Mostra tutto

Caratteristiche

Rif.:
61185957
Piano:
2 di 3 con ascensore (Piano medio)
Posti auto:
1
Terrazzi:
1
Camere da letto:
2
Arredamento:
Assente
Mostra tutto
Prezzo Prezzo
€ 109.000
Rata mutuo Rata mutuo
€ 517 / mese
Spese annue Spese annue
€ 550
Proponi il tuo prezzoProponi il tuo prezzo

Classe Energetica

G
G
G
G
G
G
G
G
G
EP globale non rinnovabile:
90.79 kW h/m² anno
EP globale rinnovabile:
90.79 kW h/m² anno
EP invernale del fabbricato:
EP estiva del fabbricato:
Anno di costruzione:
2005
Riscaldamento:
Autonomo
Tipo impianto:
A radiatori
Tipo alimentazione:
Metano

Ti interessa visionare l'immobile?

Fissa un appuntamento  Fissa un appuntamento

Richiedi informazioni

Clicca su Leggi per aprire l'informativa
* Questi campi sono obbligatori

Calcola il tuo mutuo

Semplice e senza impegno
Anticipo

( % )
Mutuo

( % )

pochi semplici passi

inserisci i tuoi dati
Questionario completato
Grazie per aver richiesto un appuntamento senza impegno con un nostro Consulente del Credito e Assicurativo.

Hai inserito correttamente tutti i dati necessari e a breve riceverai una e-mail con un link da convalidare per inviare i tuoi dati.
Affiliato
Grupposabinarignano Srl
Corso Umberto I°, 17 00068 Rignano Flaminio (RM)

Il nostro staff


  • Serena D'Onofri
    Coordinatrice
Corso Umberto I°, 17 00068 Rignano Flaminio (RM)
Zona: Rignano Flaminio
Mostra su mappa
Orari: 08:30/13:00 15:00/19:00
Affiliato
Grupposabinarignano Srl
Corso Umberto I°, 17 00068 Rignano Flaminio (RM)

2026 Tecnocasa Franchising S.p.A. - P. IVA 08365160152 - Via Monte Bianco 60/A 20089 Rozzano (MI). Ogni agenzia ha un proprio titolare ed è autonoma. Privacy policy | Policy utilizzo | Cookie policy